Aller au contenu
  • 2023
  • Enseignement, Logements, Petite enfance
  • Rue du Stade, Mundolsheim, France

pôle intergénérationnel

  • infos
  • retour projets
Close Trigger
  • pôle intergénérationnel
  • retour
  • 2023
  • Enseignement, Logements, Petite enfance
  • Rue du Stade, Mundolsheim, France

calendrier

début des études : janvier 2020
début des travaux : septembre 2021
livraison : juin 2023

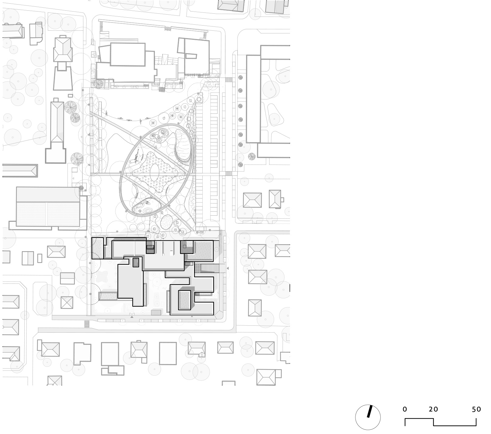
programme

construction pôle intergénérationnel regroupant 4 entités :

au rez-de-chaussée :
– 1 structure petite enfance multi-accueil (70 enfants de 0 à 3 ans)
– 1 structure enfance type périscolaire ( pour environ 50 enfants de 3 à 6 ans et 80 enfants de 6 à 12 ans),
– 1 espace intergénérationnel : un grand hall pour accueillir des événements ou journées thématiques, expositions etc. + 1 salle d’activités avec cuisine + un espace Snoezelen et un jardin sensoriel partagé

au r+1 et r+2 :
– 18 logements seniors (T2 et T3)

maître d'ouvrage

OPHEA
Ville de Mundolsheim

coût

pôle intergénérationnel : 5,40 M€ HT
parc et aire de stationnement : 1,00 M€ HT

surface

logements : 1 100 m²
équipement : 2 060 m²

intervention

construction neuve

b.e.t

O.T.E. Ingénierie (b.e.t. t.c.e.)

Linder Paysage (paysagiste)

équipe

localisation

Rue du Stade, Mundolsheim, France
tous les projets
  • Enseignement, Logements, Petite enfance
  • / autres projets
  • 2026
  • Enseignement, Petite enfance
  • 66 Chemin de Bernex, Marseille, France
groupe scolaire saint-andré la castellane
  • voir le projet
  • 2025
  • Logements
  • Rue Jean Pierre Clause, Strasbourg, France
résidence étudiante
  • voir le projet
  • 2026
  • Logements
  • Rue Ampère, Strasbourg, France
musau ampère
  • voir le projet
  • 2027
  • Enseignement, Petite enfance
  • Rue Montolieu, Marseille, France
école maternelle montolieu
  • voir le projet
  • 2027
  • Enseignement
  • CEFPPA Adrien-Zeller, Rue Eugénie Brazier, Illkirch-Graffenstaden, France
CEFPPA
  • voir le projet
  • 2025
  • Enseignement, Petite enfance
  • École Maternelle du Centre, Rue de L Hôtel de ville, Rhinau, France
école du centre
  • voir le projet
  • 2026
  • Logements, Tertiaire
  • Rue de Madrid, Schiltigheim, France
rue de Madrid
  • voir le projet
  • 2026
  • Logements
  • Rue de Clairvivre, Strasbourg, France
25 logements rue de clairvivre
  • voir le projet
  • 2026
  • Logements
  • Wacken, Strasbourg, France
archipel 2 - aux confluences
  • voir le projet
  • 2025
  • Logements
  • Wacken, Strasbourg, France
2025 • Archipel 2 - lot A' • strasbourg [67]
  • voir le projet
  • rca | atelier d'architecture
  • © 2026
  • mentions légales

calendrier

début des études : janvier 2020
début des travaux : septembre 2021
livraison : juin 2023

programme

construction pôle intergénérationnel regroupant 4 entités :

au rez-de-chaussée :
– 1 structure petite enfance multi-accueil (70 enfants de 0 à 3 ans)
– 1 structure enfance type périscolaire ( pour environ 50 enfants de 3 à 6 ans et 80 enfants de 6 à 12 ans),
– 1 espace intergénérationnel : un grand hall pour accueillir des événements ou journées thématiques, expositions etc. + 1 salle d’activités avec cuisine + un espace Snoezelen et un jardin sensoriel partagé

au r+1 et r+2 :
– 18 logements seniors (T2 et T3)

maître d'ouvrage

OPHEA
Ville de Mundolsheim

coût

pôle intergénérationnel : 5,40 M€ HT
parc et aire de stationnement : 1,00 M€ HT

surface

logements : 1 100 m²
équipement : 2 060 m²

intervention

construction neuve

b.e.t

O.T.E. Ingénierie (b.e.t. t.c.e.)

Linder Paysage (paysagiste)

équipe

localisation

Rue du Stade, Mundolsheim, France
tous les projets

index

  • atelier
  • projets
  • atelier
  • projets
  • Petite enfance
  • Enseignement
  • Culture
  • Sport
  • Petite enfance
  • Enseignement
  • Culture
  • Sport
  • Logements
  • Santé
  • Tertiaire
  • Locaux d’Activités
  • Urbain
  • Logements
  • Santé
  • Tertiaire
  • Locaux d’Activités
  • Urbain
  • localisation des projets
  • actualités
  • publications
  • contact
  • localisation des projets
  • actualités
  • publications
  • contact
  • 57 route de l’hôpital
    67100 Strasbourg
    France
  • contact@rca-a.com
  • +33 (0)3 88 45 89 30
  • Mentions légales
  • Tous droits réservés © 2026
Linkedin Instagram Youtube