Aller au contenu
  • 2025
  • Logements
  • Rue Jean Pierre Clause, Strasbourg, France

résidence étudiante

  • infos
  • retour projets
Close Trigger
  • résidence étudiante
  • retour
  • 2025
  • Logements
  • Rue Jean Pierre Clause, Strasbourg, France

calendrier

livré en 2025

programme

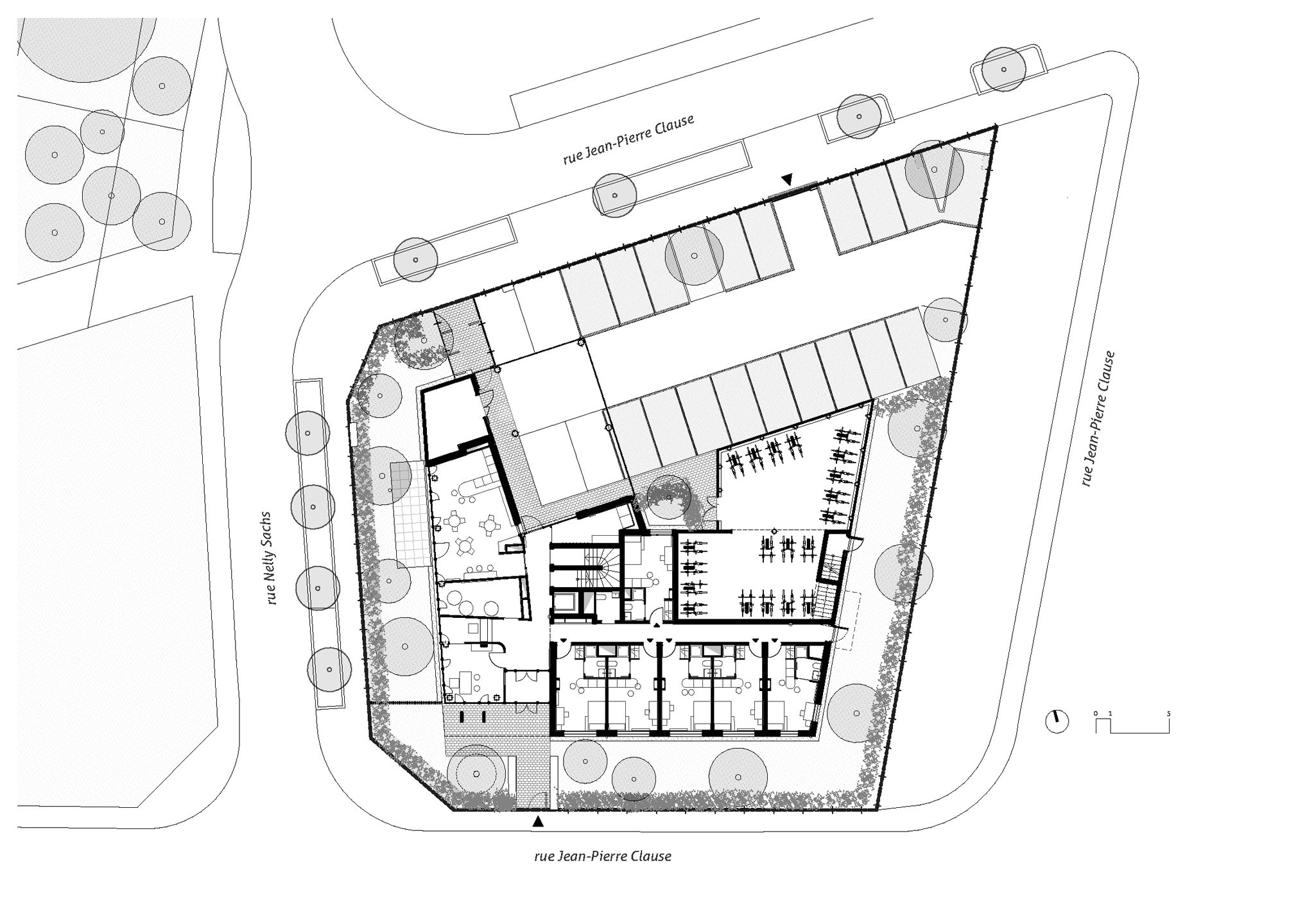
Réalisation d’une résidence étudiante de 85 chambres :
• 74 studios d’environ 19 m2
• locaux communs en rez-de-chaussée : salle cuisine-coworking de 47 m2 – salle vidéo – laverie
• 2 colivings de 4 chambres chacun avec locaux partagés (cuisine et séjour)
• local vélos
• parking de 22 places dont 1 en autopartage

maître d'ouvrage

Nexity

coût

4,09 M€ H.T.

surface

SP : 2 080 m2
SHAB : 1 686 m2

intervention

conception

b.e.t

• CAPEM
• ELAN
• O.T.E. (V.R.D.)
• EKKOIA

équipe

localisation

Rue Jean Pierre Clause, Strasbourg, France
tous les projets
  • Logements
  • / autres projets
  • 2025
  • Sport
  • Gymnase du Ried, Rue du Guirbaden, Bischheim, France
2025 • gymnase du ried • bischheim [67]
  • voir le projet
  • 2026
  • Logements
  • Rue Ampère, Strasbourg, France
musau ampère
  • voir le projet
  • 2025
  • Enseignement, Petite enfance
  • École Maternelle du Centre, Rue de L Hôtel de ville, Rhinau, France
école du centre
  • voir le projet
  • 2025
  • Sport
  • Rue du Stade, 67490 Dettwiller, France
complexe sportif
  • voir le projet
  • 2026
  • Logements, Tertiaire
  • Rue de Madrid, Schiltigheim, France
rue de Madrid
  • voir le projet
  • 2026
  • Logements
  • Rue de Clairvivre, Strasbourg, France
25 logements rue de clairvivre
  • voir le projet
  • 2026
  • Logements
  • Wacken, Strasbourg, France
archipel 2 - aux confluences
  • voir le projet
  • 2024
  • Logements
  • Haguenau, France
éco-quartier thurot
  • voir le projet
  • 2025
  • Tertiaire
  • Rue du Maréchal Juin, Strasbourg, France
cité administrative
  • voir le projet
  • 2025
  • Sport
  • Eckwersheim, France
équipement sportif
  • voir le projet
  • rca | atelier d'architecture
  • © 2026
  • mentions légales

calendrier

livré en 2025

programme

Réalisation d’une résidence étudiante de 85 chambres :
• 74 studios d’environ 19 m2
• locaux communs en rez-de-chaussée : salle cuisine-coworking de 47 m2 – salle vidéo – laverie
• 2 colivings de 4 chambres chacun avec locaux partagés (cuisine et séjour)
• local vélos
• parking de 22 places dont 1 en autopartage

maître d'ouvrage

Nexity

coût

4,09 M€ H.T.

surface

SP : 2 080 m2
SHAB : 1 686 m2

intervention

conception

b.e.t

• CAPEM
• ELAN
• O.T.E. (V.R.D.)
• EKKOIA

équipe

localisation

Rue Jean Pierre Clause, Strasbourg, France
tous les projets

index

  • atelier
  • projets
  • atelier
  • projets
  • Petite enfance
  • Enseignement
  • Culture
  • Sport
  • Petite enfance
  • Enseignement
  • Culture
  • Sport
  • Logements
  • Santé
  • Tertiaire
  • Locaux d’Activités
  • Urbain
  • Logements
  • Santé
  • Tertiaire
  • Locaux d’Activités
  • Urbain
  • localisation des projets
  • actualités
  • publications
  • contact
  • localisation des projets
  • actualités
  • publications
  • contact
  • 57 route de l’hôpital
    67100 Strasbourg
    France
  • contact@rca-a.com
  • +33 (0)3 88 45 89 30
  • Mentions légales
  • Tous droits réservés © 2026
Linkedin Instagram Youtube