Aller au contenu
  • 2026
  • Logements
  • Wacken, Strasbourg, France

archipel 2 - aux confluences

  • infos
  • retour projets
Close Trigger
  • archipel 2 - aux confluences
  • retour
  • 2026
  • Logements
  • Wacken, Strasbourg, France

calendrier

études en cours

programme

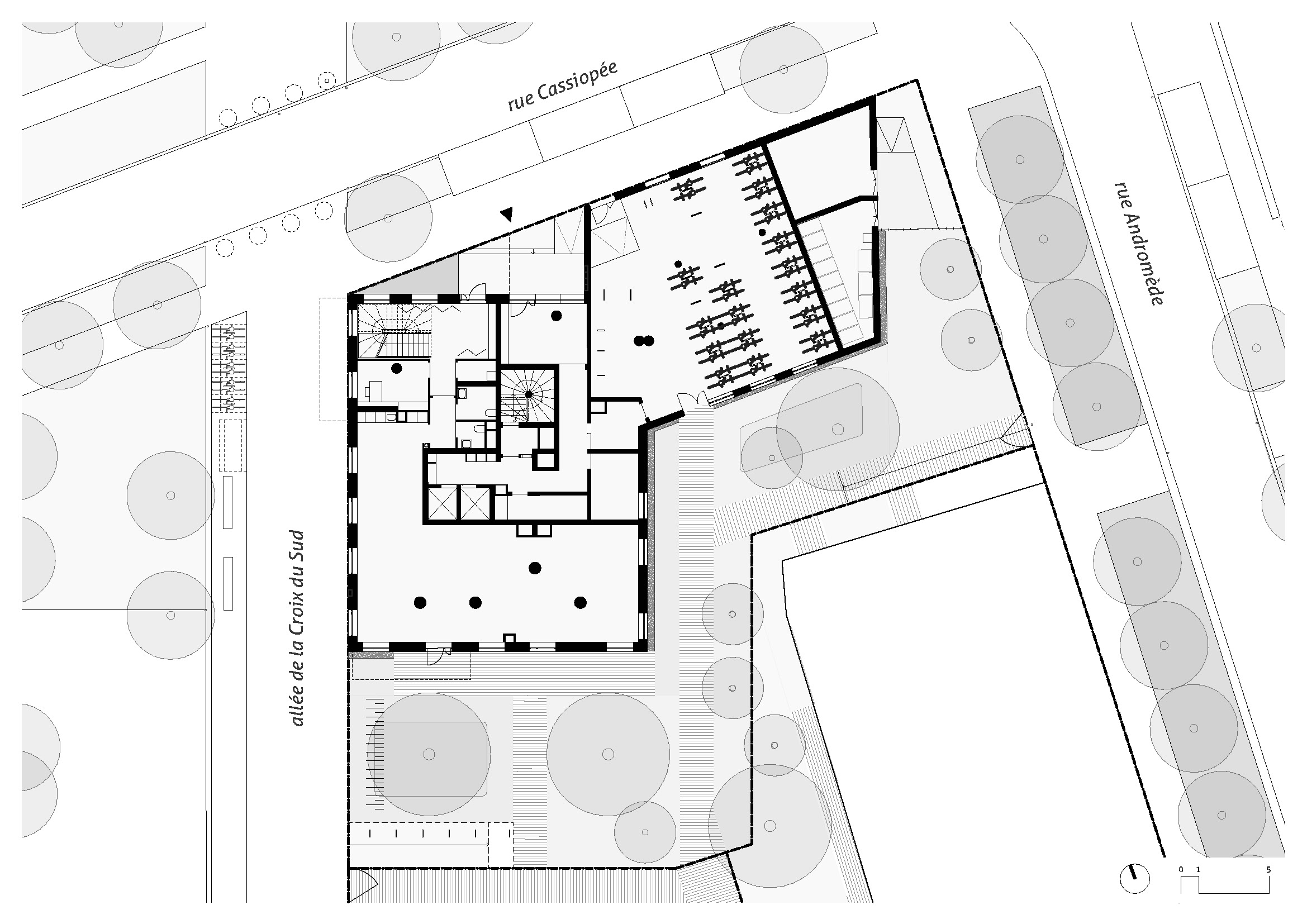
– bâtiment en R+17
– 44 logements du T1 au T5 dont 40 en accession et 4 logements sociaux pour Habitat & Humanis
– socle en R+1 comprenant un café et des bureaux

maître d'ouvrage

LUX Immobilier
WELLER Immobilier

coût

nc

surface

s.p. : 4 070 m2 dont :
– 3 290 m2 de logements
– 650 m2 de bureaux
– 130 m2 de café

intervention

construction neuve

b.e.t

Illios
Callisto

équipe

rey-de crécy atelier d’architecture
Atelier Matthieu Buisson

localisation

Wacken, Strasbourg, France
tous les projets
  • Logements
  • / autres projets
  • 2026
  • Sport
  • Stade de la Meinau Strasbourg, Rue de l'Extenwoerth, Strasbourg, France
stade de la meinau
  • voir le projet
  • 2025
  • Logements
  • Rue Jean Pierre Clause, Strasbourg, France
résidence étudiante
  • voir le projet
  • 2026
  • Logements
  • Rue Ampère, Strasbourg, France
musau ampère
  • voir le projet
  • 2026
  • Logements, Tertiaire
  • Rue de Madrid, Schiltigheim, France
rue de Madrid
  • voir le projet
  • 2026
  • Logements
  • Rue de Clairvivre, Strasbourg, France
25 logements rue de clairvivre
  • voir le projet
  • 2024
  • Logements
  • Haguenau, France
éco-quartier thurot
  • voir le projet
  • 2024
  • Logements
  • 12 Route des Romains, Strasbourg, France
portes des romains
  • voir le projet
  • 2024
  • Logements
  • 56 Rue des Vosges, 67540 Ostwald, France
ensemble immobilier de 32 logements
  • voir le projet
  • 2024
  • Logements
  • 37 Rue de Boersch, Obernai, France
le refuge de don quichotte
  • voir le projet
  • 2023
  • Logements
  • Rue Saint Charles, Schiltigheim, France
village saint charles
  • voir le projet
  • rca | atelier d'architecture
  • © 2026
  • mentions légales

calendrier

études en cours

programme

– bâtiment en R+17
– 44 logements du T1 au T5 dont 40 en accession et 4 logements sociaux pour Habitat & Humanis
– socle en R+1 comprenant un café et des bureaux

maître d'ouvrage

LUX Immobilier
WELLER Immobilier

coût

nc

surface

s.p. : 4 070 m2 dont :
– 3 290 m2 de logements
– 650 m2 de bureaux
– 130 m2 de café

intervention

construction neuve

b.e.t

Illios
Callisto

équipe

rey-de crécy atelier d’architecture
Atelier Matthieu Buisson

localisation

Wacken, Strasbourg, France
tous les projets

index

  • atelier
  • projets
  • atelier
  • projets
  • Petite enfance
  • Enseignement
  • Culture
  • Sport
  • Petite enfance
  • Enseignement
  • Culture
  • Sport
  • Logements
  • Santé
  • Tertiaire
  • Locaux d’Activités
  • Urbain
  • Logements
  • Santé
  • Tertiaire
  • Locaux d’Activités
  • Urbain
  • localisation des projets
  • actualités
  • publications
  • contact
  • localisation des projets
  • actualités
  • publications
  • contact
  • 57 route de l’hôpital
    67100 Strasbourg
    France
  • contact@rca-a.com
  • +33 (0)3 88 45 89 30
  • Mentions légales
  • Tous droits réservés © 2026
Linkedin Instagram Youtube