Aller au contenu
  • 2002
  • Enseignement
  • Strasbourg, France

collège foch

  • infos
  • retour projets
Close Trigger
  • collège foch
  • retour
  • 2002
  • Enseignement
  • Strasbourg, France

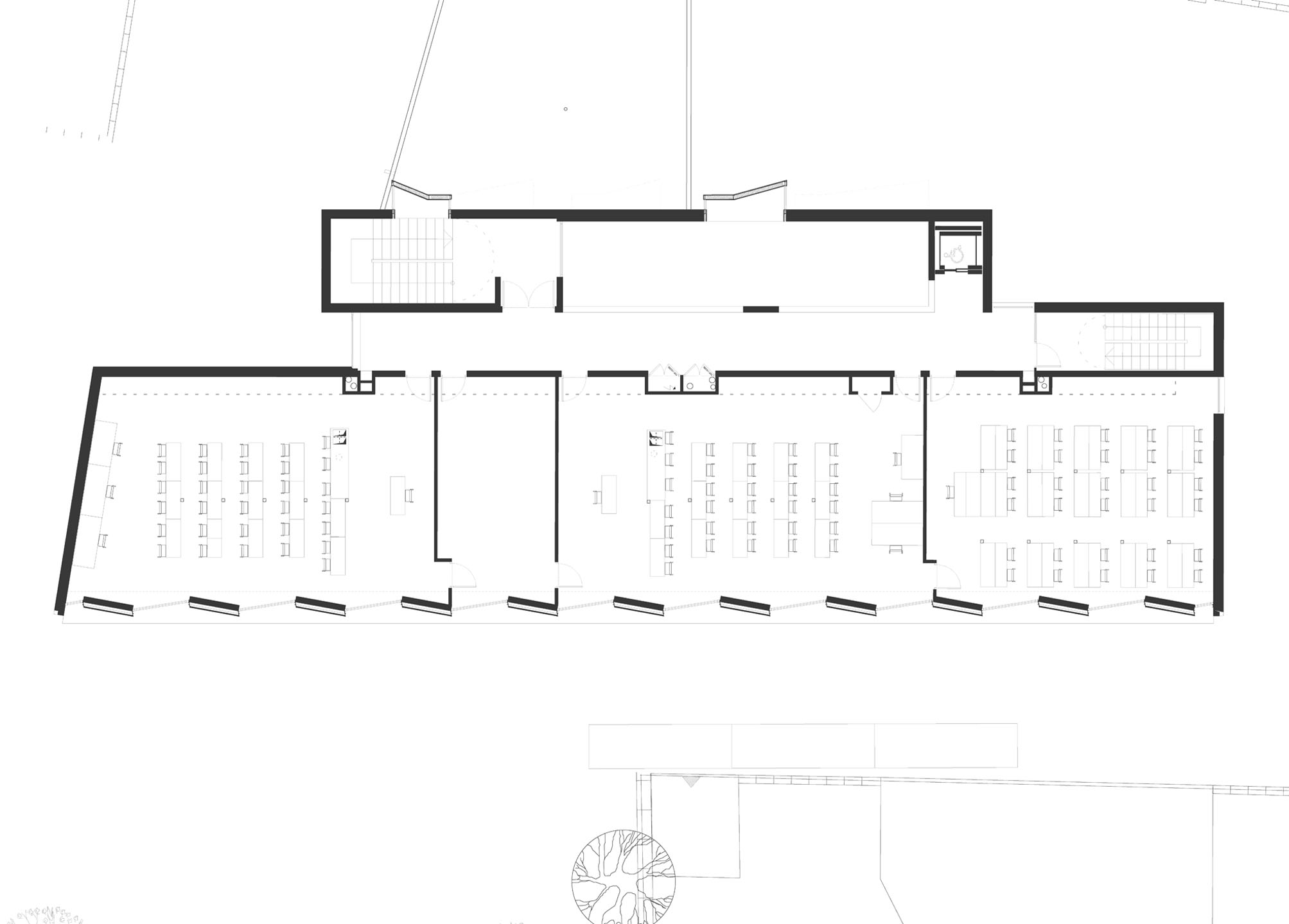
calendrier

2002
travaux / 24 mois en site occupé

programme

maître d'ouvrage

conseil général du bas-rhin

coût

2,09 m€ h.t. / 2,50 m€ t.t.c.

surface

3 370 m² / 2 500 m² restructuré / 870 m² construit

intervention

restructuration et extension

b.e.t

acte – pingat

équipe

localisation

Strasbourg, France
tous les projets
  • Enseignement
  • / autres projets
  • 2027
  • Enseignement
  • Rue Montolieu, Marseille, France
école maternelle montolieu
  • voir le projet
  • 2027
  • Enseignement
  • CEFPPA Adrien-Zeller, Rue Eugénie Brazier, Illkirch-Graffenstaden, France
CEFPPA
  • voir le projet
  • 2025
  • Enseignement, Petite enfance
  • École Maternelle du Centre, Rue de L Hôtel de ville, Rhinau, France
école du centre
  • voir le projet
  • 2025
  • Enseignement
  • Rue Gustave Eiffel, Cernay, France
lycée gustave eiffel
  • voir le projet
  • 2024
  • Enseignement
  • Rue de Saint-Dié, Strasbourg, France
groupe scolaire du schluthfeld
  • voir le projet
  • 2024
  • Enseignement
  • Lycee Professionnel Maryse Bastie, Rue de Tivoli, Hayange, France
lycée professionnel maryse bastié
  • voir le projet
  • 2023
  • Enseignement, Petite enfance
  • 3 Rue du Château, Baldenheim, France
accueil périscolaire
  • voir le projet
  • 2023
  • Enseignement, Logements, Petite enfance
  • Rue du Stade, Mundolsheim, France
pôle intergénérationnel
  • voir le projet
  • 2023
  • Enseignement
  • Rue Eugénie Brazier, Illkirch-Graffenstaden, France
pôle d'excellence hôtelier
  • voir le projet
  • 2021
  • Enseignement, Petite enfance
  • Rue de Rosheim, Griesheim-prés-Molsheim, France
périscolaire
  • voir le projet
  • rey - de crécy | atelier d'architecture | tous droits réservés © 2025
  • mentions légales

calendrier

2002
travaux / 24 mois en site occupé

programme

maître d'ouvrage

conseil général du bas-rhin

coût

2,09 m€ h.t. / 2,50 m€ t.t.c.

surface

3 370 m² / 2 500 m² restructuré / 870 m² construit

intervention

restructuration et extension

b.e.t

acte – pingat

équipe

localisation

Strasbourg, France
tous les projets

index

  • atelier
  • projets
  • atelier
  • projets
  • Petite enfance
  • Enseignement
  • Culture
  • Sport
  • Petite enfance
  • Enseignement
  • Culture
  • Sport
  • Logements
  • Santé
  • Tertiaire
  • Locaux d’Activités
  • Urbain
  • Logements
  • Santé
  • Tertiaire
  • Locaux d’Activités
  • Urbain
  • localisation des projets
  • actualités
  • publications
  • contact
  • localisation des projets
  • actualités
  • publications
  • contact
  • 57 route de l’hôpital
    67100 Strasbourg
    France
  • contact@rca-a.com
  • +33 (0)3 88 45 89 30
  • Mentions légales
  • Tous droits réservés © 2025
Linkedin Instagram Youtube