Aller au contenu
  • 2021
  • Tertiaire
  • 1 Rue du Port du Rhin, Strasbourg, France

siège du port autonome

  • infos
  • retour projets
Close Trigger
  • siège du port autonome
  • retour
  • 2021
  • Tertiaire
  • 1 Rue du Port du Rhin, Strasbourg, France

calendrier

concours : mars 2017 – juin 2017
études : septembre 2017 – juin 2018
chantier : janvier 2019 – avril 2021

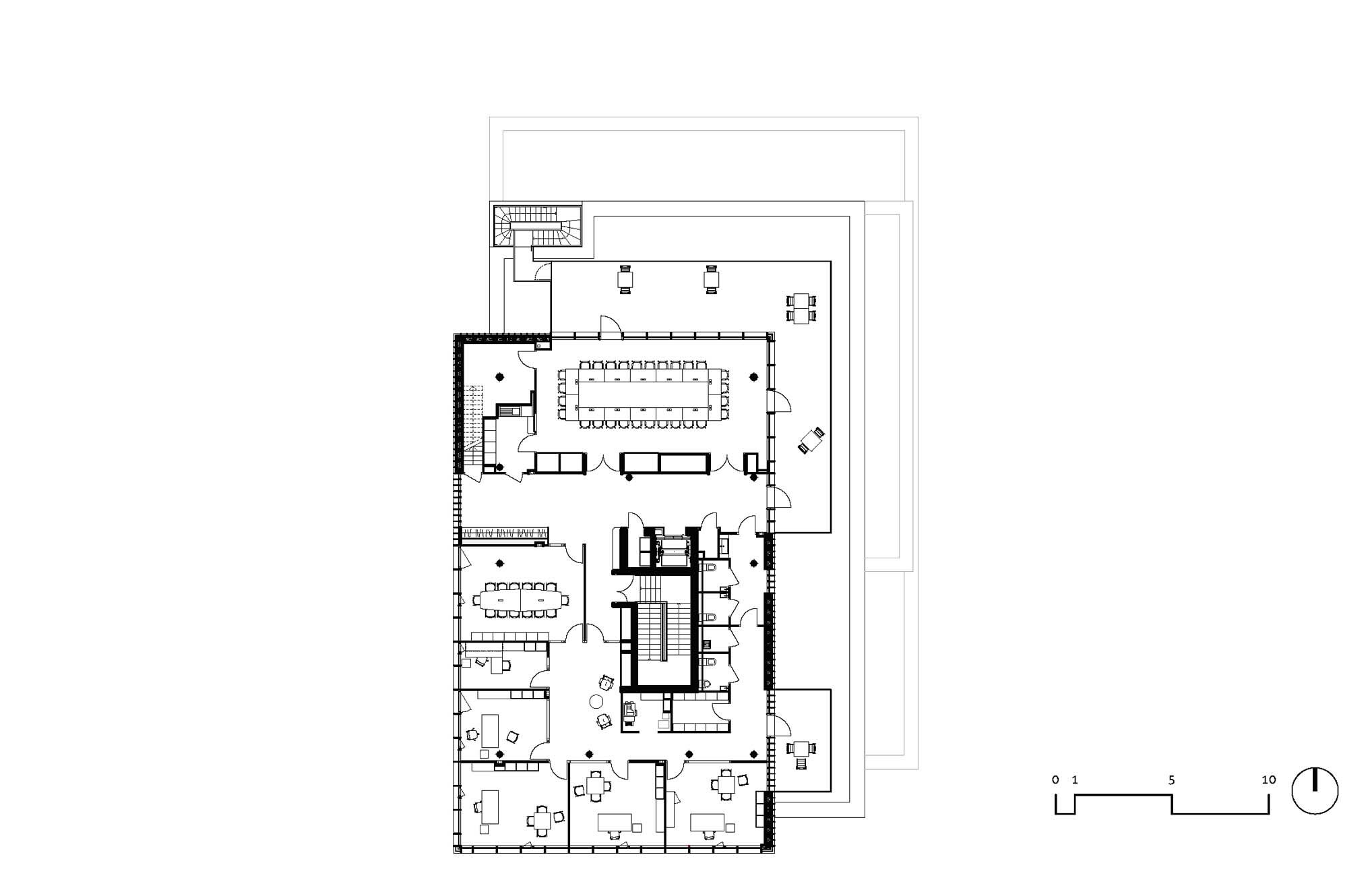
programme

construction du siège du Port Autonome de Strasbourg :
– Bureaux pour 70 personnes
– Espaces de restauration, d’accueil, réunion/conférence
– Logistique/archives
– Locaux 2 roues + voitures couvert + 40 places aériennes
– Aménagement paysager du site
– 1 terrasse par étage
– Structure mixte b ton/bois/charpente métallique
– RT 2012 -30%

maître d'ouvrage

Port Autonome de Strasbourg

coût

8,38 M€ HT

surface

2 758 m²

intervention

construction neuve

b.e.t

OTE bureau d’études techniques
Otelio bureau d’études environnemental
C2BI économiste
Digitale Paysage paysagiste

équipe

localisation

1 Rue du Port du Rhin, Strasbourg, France
tous les projets
  • Tertiaire
  • / autres projets
  • 2026
  • Logements, Tertiaire
  • Rue de Madrid, Schiltigheim, France
rue de Madrid
  • voir le projet
  • 2025
  • Tertiaire
  • Rue du Maréchal Juin, Strasbourg, France
cité administrative
  • voir le projet
  • 2025
  • Tertiaire
  • Entzheim, France
pavillon d'honneur
  • voir le projet
  • 2024
  • Locaux d'Activités, Tertiaire
  • Illzach, France
concession Mercedes-Benz VI
  • voir le projet
  • 2021
  • Logements
  • 18 Rue Welsch, 67100 Strasbourg, France
résidence stockfeld
  • voir le projet
  • 2021
  • Logements
  • 4 Avenue de Gail, Obernai, France
avenue de gail
  • voir le projet
  • 2021
  • Logements
  • 64 Rue des Petites Fermes, Strasbourg, France
résidence sociale
  • voir le projet
  • 2021
  • Sport
  • Nautiland, Rue des Dominicains, Haguenau, France
centre aquatique nautiland
  • voir le projet
  • 2021
  • Enseignement, Petite enfance
  • Rue de Rosheim, Griesheim-prés-Molsheim, France
périscolaire
  • voir le projet
  • 2020
  • Locaux d'Activités, Tertiaire
  • Wolfisheim, France
plateforme logistique
  • voir le projet
  • rey - de crécy | atelier d'architecture | tous droits réservés © 2025
  • mentions légales

calendrier

concours : mars 2017 – juin 2017
études : septembre 2017 – juin 2018
chantier : janvier 2019 – avril 2021

programme

construction du siège du Port Autonome de Strasbourg :
– Bureaux pour 70 personnes
– Espaces de restauration, d’accueil, réunion/conférence
– Logistique/archives
– Locaux 2 roues + voitures couvert + 40 places aériennes
– Aménagement paysager du site
– 1 terrasse par étage
– Structure mixte b ton/bois/charpente métallique
– RT 2012 -30%

maître d'ouvrage

Port Autonome de Strasbourg

coût

8,38 M€ HT

surface

2 758 m²

intervention

construction neuve

b.e.t

OTE bureau d’études techniques
Otelio bureau d’études environnemental
C2BI économiste
Digitale Paysage paysagiste

équipe

localisation

1 Rue du Port du Rhin, Strasbourg, France
tous les projets

index

  • atelier
  • projets
  • atelier
  • projets
  • Petite enfance
  • Enseignement
  • Culture
  • Sport
  • Petite enfance
  • Enseignement
  • Culture
  • Sport
  • Logements
  • Santé
  • Tertiaire
  • Locaux d’Activités
  • Urbain
  • Logements
  • Santé
  • Tertiaire
  • Locaux d’Activités
  • Urbain
  • localisation des projets
  • actualités
  • publications
  • contact
  • localisation des projets
  • actualités
  • publications
  • contact
  • 57 route de l’hôpital
    67100 Strasbourg
    France
  • contact@rca-a.com
  • +33 (0)3 88 45 89 30
  • Mentions légales
  • Tous droits réservés © 2025
Linkedin Instagram Youtube