Aller au contenu
  • 2024
  • Logements
  • 56 Rue des Vosges, 67540 Ostwald, France

ensemble immobilier de 32 logements

  • infos
  • retour projets
Close Trigger
  • ensemble immobilier de 32 logements
  • retour
  • 2024
  • Logements
  • 56 Rue des Vosges, 67540 Ostwald, France

calendrier

livré en 2024

programme

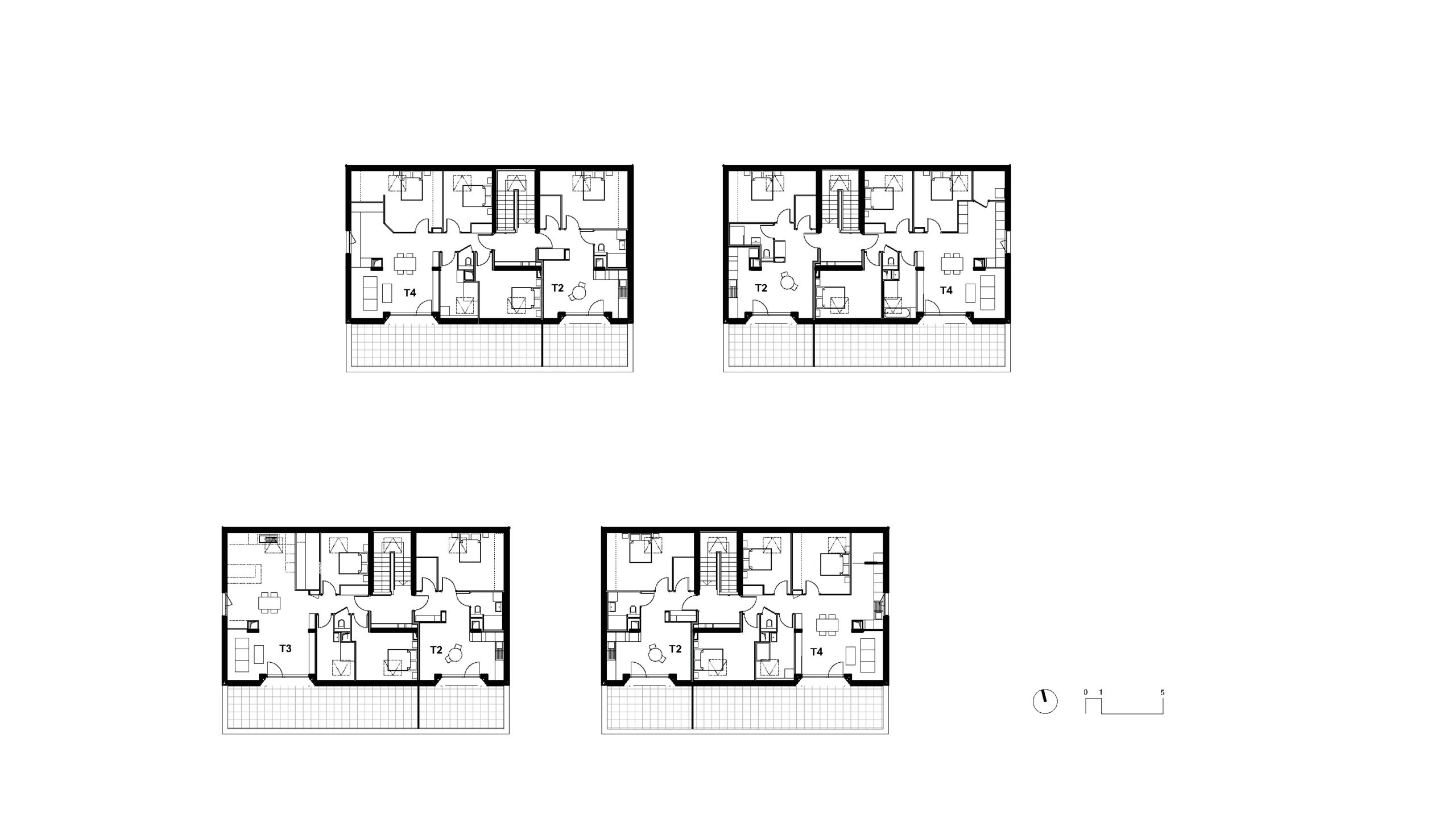
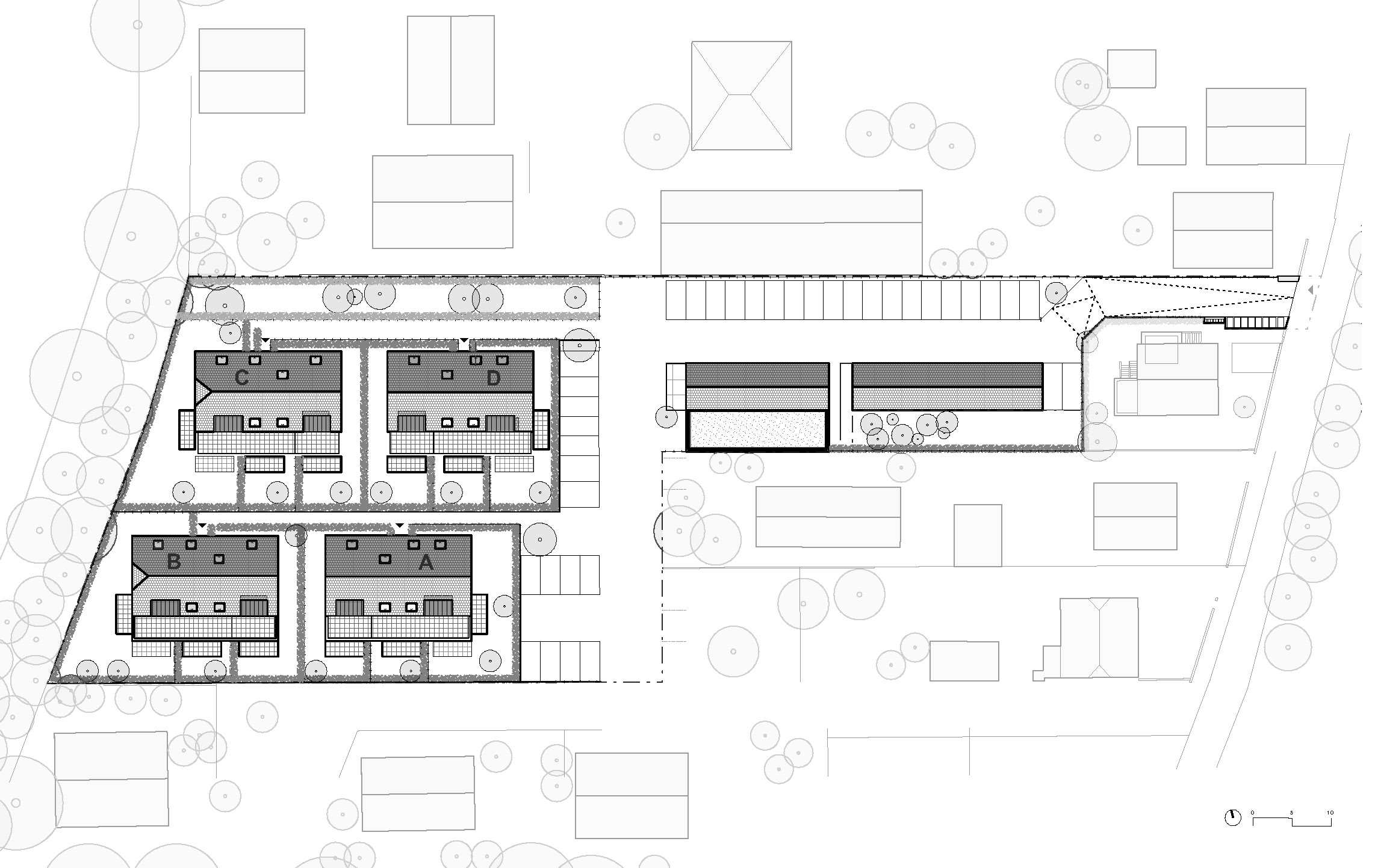
Construction d’un ensemble immobilier de 32 logements :
• 4 bâtiments de 8 logements chacun en R+1+combles
• 51 places de parking dont 14 garages

maître d'ouvrage

Boulle Immobilier

coût

NC

surface

2 000 m2

intervention

conception

b.e.t

équipe

localisation

56 Rue des Vosges, 67540 Ostwald, France
tous les projets
  • Logements
  • / autres projets
  • 2025
  • Logements
  • Rue Jean Pierre Clause, Strasbourg, France
résidence étudiante
  • voir le projet
  • 2026
  • Logements
  • Rue Ampère, Strasbourg, France
musau ampère
  • voir le projet
  • 2026
  • Logements, Tertiaire
  • Rue de Madrid, Schiltigheim, France
rue de Madrid
  • voir le projet
  • 2026
  • Logements
  • Rue de Clairvivre, Strasbourg, France
25 logements rue de clairvivre
  • voir le projet
  • 2026
  • Logements
  • Wacken, Strasbourg, France
archipel 2 - aux confluences
  • voir le projet
  • 2024
  • Logements
  • Haguenau, France
éco-quartier thurot
  • voir le projet
  • 2024
  • Logements
  • 12 Route des Romains, Strasbourg, France
portes des romains
  • voir le projet
  • 2024
  • Enseignement
  • Rue de Saint-Dié, Strasbourg, France
groupe scolaire du schluthfeld
  • voir le projet
  • 2024
  • Locaux d'Activités, Tertiaire
  • Illzach, France
concession Mercedes-Benz VI
  • voir le projet
  • 2024
  • Logements
  • 37 Rue de Boersch, Obernai, France
le refuge de don quichotte
  • voir le projet
  • rey - de crécy | atelier d'architecture | tous droits réservés © 2025
  • mentions légales

calendrier

livré en 2024

programme

Construction d’un ensemble immobilier de 32 logements :
• 4 bâtiments de 8 logements chacun en R+1+combles
• 51 places de parking dont 14 garages

maître d'ouvrage

Boulle Immobilier

coût

NC

surface

2 000 m2

intervention

conception

b.e.t

équipe

localisation

56 Rue des Vosges, 67540 Ostwald, France
tous les projets

index

  • atelier
  • projets
  • atelier
  • projets
  • Petite enfance
  • Enseignement
  • Culture
  • Sport
  • Petite enfance
  • Enseignement
  • Culture
  • Sport
  • Logements
  • Santé
  • Tertiaire
  • Locaux d’Activités
  • Urbain
  • Logements
  • Santé
  • Tertiaire
  • Locaux d’Activités
  • Urbain
  • localisation des projets
  • actualités
  • publications
  • contact
  • localisation des projets
  • actualités
  • publications
  • contact
  • 57 route de l’hôpital
    67100 Strasbourg
    France
  • contact@rca-a.com
  • +33 (0)3 88 45 89 30
  • Mentions légales
  • Tous droits réservés © 2025
Linkedin Instagram Youtube